HERZ PROplan - это программа для трехмерного планирования, которая позволяет легко проектировать системы панельно-лучистого и радиаторного отопления, а также проводить тепловой расчет зданий. Кроме того, с помощью данной программы можно запроектировать систему водоснабжения.

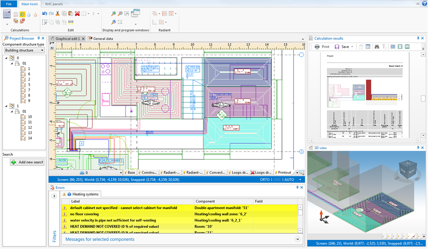
В программе предусмотрен ряд инновационных функций для повышения эффективности и качества повседневной работы проектировщика. Данная программа помогает проектировщику на всех этапах проектирования: от теплотехнического расчета, гидравлического расчета системы отопления и до готовой распечатки проекта. В ходе гидравлического расчета системы отопления подбираются диаметры трубопроводов, включая стояки, определяются потери давления на участках и всей системы, подбираются настройки термостатической, балансировочной и регулирующей арматуры. После завершения выполнения проекта можно вывести список применяемой продукции HERZ. Радиаторы, распределители отопительных контуров, а также устанавливаемую в системе отопления арматуру можно подобрать из имеющейся базы данных продукции HERZ. HERZ PROplan позволяет запроектировать комбинированные системы, такие как системы панельно-лучистого отопления совместно с дополнительными конвективными нагревательными приборами.

С помощью программы HERZ PROplan возможен расчет потребности в тепловой мощности. Тепловые расчеты выполняются с использованием смоделированной конструкции здания в соответствии с нормами теплопотерь EN 12831. На основе результатов можно запроектировать и оптимизировать систему отопления.
Для упрощения графического вывода, HERZ PROplan базируется на двухмерном изображении проекта. Однако пользователь может просмотреть проект и внести в него изменения в трехмерном изображении.